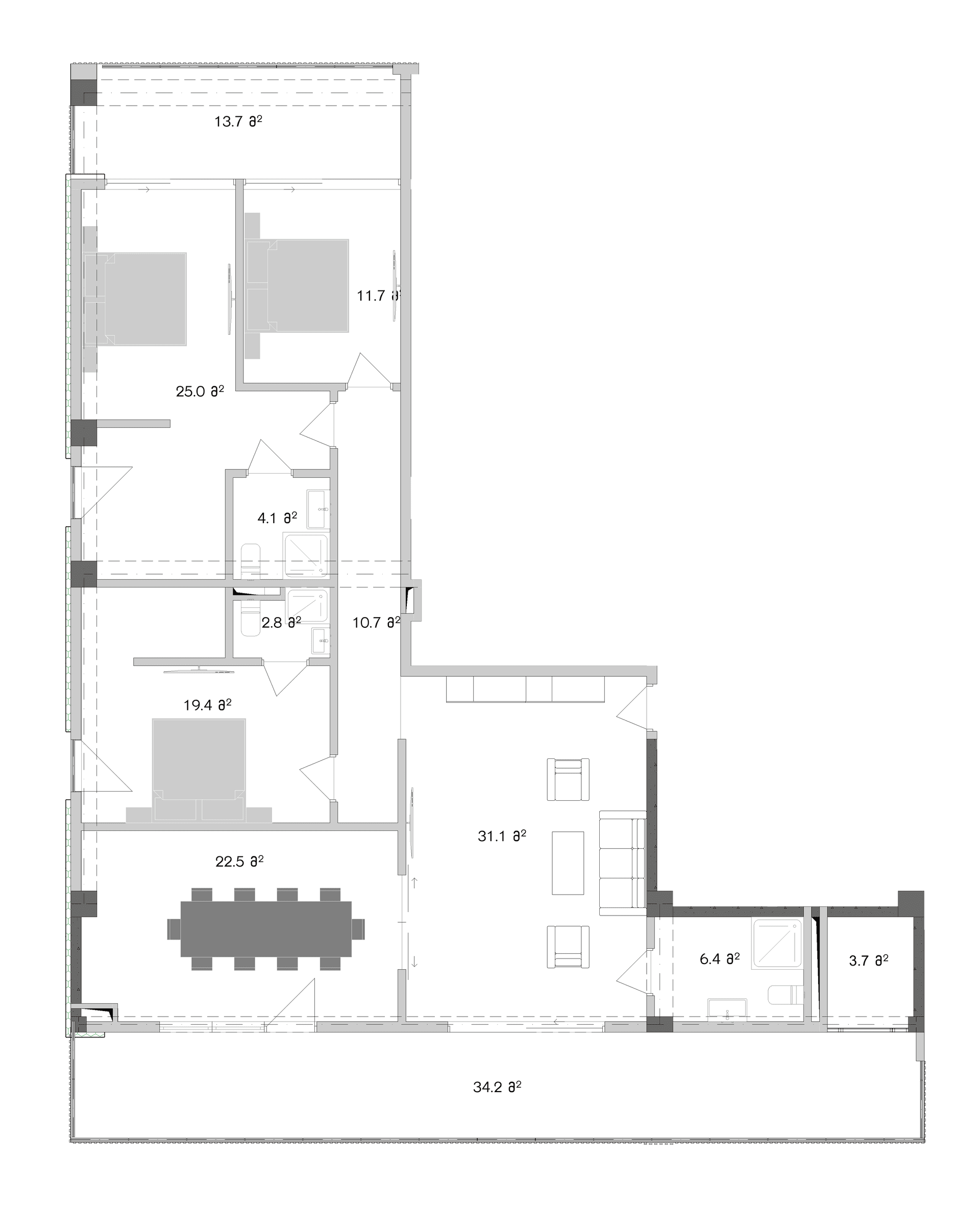
3 Bedroom - 152M2

Titsian Tabidze 12

Available: 1 / 2 apartments
Apartment types
Number of apartments
8
construction area
1 500 M2
Type
Boutique-style
Completion year
Q3 2026

TABIDZE 112 is an exclusive boutique residential project located in the center of Vake, just minutes from Vake Park. The project features a limited number of apartments, outdoor summer terraces, and a private residential environment that creates a truly distinctive living experience. TABIDZE 112 is designed for those who value tranquility, quality, and central city living.
ROI up to
High rental demand driven by the project’s central Saburtalo location near City Mall and Vazha-Pshavela Metro creates strong potential for stable annual rental income
Free-installment plan
Flexible 0% internal instalment allows you to invest comfortably while benefiting from property value growth during the construction period
Capitalization potential up to
Property value growth during construction and the project’s strategic central location create strong long-term capitalization potential
Our Partners



















